商务直通:18757117786

农贸市场设计案例 | 传统菜场升级改造后,助力美丽城市建设!

发表时间:2022-04-20 10:57作者:BenuoHan

写 在 最 前

2021年元旦,这个大家喜迎新年的日子里,无锡市锡山区的羊尖农贸市场内格外热闹,羊尖人民对这个“改头换面”后的农贸市场抱有很大的热情,也给予了最高的肯定。


可它曾经也是面临环境卫生令人捂鼻等等一系列问题,可谓传统农贸市场被时代冲刷淘汰后的典型案例。


时间流转,在2021年的开年,羊尖农贸市场旧貌换新颜,重打鼓令开张,依靠能打的颜值、过硬的品质、最新的技术和贴心的服务再次赢得羊尖百姓的喜爱,为羊尖镇政府在“美丽锡山”的建设工程中添上了浓墨重彩的一笔。

民以食为天。农贸市场是联系农产品生产者、经营者、消费者和管理者的重要纽带。农贸市场的建设与管理,看似民生小事,却直接影响“米袋子”“菜篮子”“果盘子”的市场供应、价格稳定和食品安全,体现着一个城市的基本素质,反映着一个城市的文明程度,与人民群众的获得感、生活幸福感成正相关。

随着社会的不断发展,人们生活水平与城市文明程度的提高,人民对美好生活的向往,传统农贸市场存在的问题日益暴露,越来越不能满足居民对卫生、健康和生活质量的要求,随之新型农贸市场的雨后春笋般出现。传统农贸市场的升级改造迫在眉睫,只有明确问题出在哪里,市场提升改造才能更有针对性,改造效果更符合当地市场。

原来的羊尖农贸市场问题出在哪?


在着手设计羊尖农贸市场之前,杭州贝诺团队的设计师就老旧的羊尖农贸市场进行了深入的实地调研考察,针对其当时状况标注了以下几个市场问题。

1.市场布局缺乏合理性


市场内部分摊位未按照围合式布局布置,导致经营户内部存储空间裸露在外,影响市场环境美观;甚至个别摊位面墙经营,客流量极其受限,对经营户的经营十分不利,容易造成阴阳街局面。


▲设计不合理造成的面墙经营


市场部分摊位设计不合理,摊位区域的设计无法满足该经营业态下,经营户功能性设备嵌入的需求,例如冷冻柜预留区域过于狭窄等问题。

2.整体空间利用率低


羊尖农贸市场分为两层,一层售卖农产品,空间紧凑,而市场二层仅有几家服饰在经营,其余空间闲置。一层摊位内部空间狭小,满足不了实际使用需求,二层又没有充分利用,来到二楼的顾客也寥寥无几。


▲改造前空空荡荡的市场二层


市场原有布局设置的不合理,未结合考虑消费者心理。在一层中设置了大量日常生活中的高频刚需品,而二楼业态相对一层来讲,购买频率较低,导致了一楼和二楼生意现象呈阴阳对比。

3.购物环境不尽人意


市场内整体的排水、通风、走电等缺乏一定设计合理性,也已经不符合最新出台的建筑设计规范,这样也导致市场“脏乱差, 湿腥臭”等问题显著。


▲“脏乱差,湿腥臭”的市场环境


市场整体的照明亮度明显不足、灯光色温的选择也没有考虑到品类的各异性,使得整个市场内部昏暗、阴冷,这些弊端会给消费的带来较差的购物体验,久而久之,消费者便敬而远之。

4.存在消防安全隐患


▲消防设施设备薄弱


由于羊尖农贸市场是老市场,市场建设时对消防要求不高,市场内没有配备基础的消防设备设施,这与现行消防规范严重不符。

5.市场外立面老旧脱落


由于市场已运营时间较久,且过程中未进行小修大补等维护措施,整个市场的摊位、地面、墙面等存在严重的老化,甚至破损的问题。


▲年久失修的外立面


其中最为严重的是,市场的外立面经历过长年的风吹日晒,外墙表面十分脆弱,部分外墙已经脱落,不仅影响市场的美观程度,这也与政府建设美丽锡山的理念不符。

......

由于前期扎实的市场调研,明确了市场存在的根本问题,设计师在升级改造过程中更加得心应手,如鱼得水,提出了很多建设性的意见。

01. 项目区位

伴随着时代的变迁社会的不断发展,农贸市场不仅仅是一个简单的买菜场所,它已经在时代的敦促下进化成为多样化、便民化的公共空间,更多的是要满足消费者的心理期待,所以市场整体的环境倍受关注,在行业竞争中起着举足轻重的作用。

▲本案地理位置标注

本次羊尖农贸市场的设计中,设计团队着眼于”三个变化”:布局动线合理化、设备设施便民化、设计风格简洁化,从三个变化中入手打造便民、舒适、多样化的中心型智慧星级农贸市场。

02. 项目概况

羊尖农贸市场位于江苏省无锡市锡山区羊尖镇人民路67号,市场北临锡泸路,西临羊浦路,同时市场三面都有辅路汇入,交通十分便利,拥有得天独厚的地理优势;市场范围500米内住宅区汇集,距离市场200米的范围内有一家联华超市,人流密集但竞争对手也十分强劲,想要在市场中脱颖而出,必须抓住消费者心理,在市场设计的关键点上下功夫。



杭州贝诺团队设计师在装修施工过程中提供设计指导,并根据项目实际情况调整设计细节。

>>市场概况


市场名称:羊尖农贸市场

市场面积:约3600平方米

项目地点:江苏省无锡市锡山区羊尖镇

业主信息:无锡市锡山区羊尖镇人民政府

设计单位:杭州贝诺环境艺术设计有限公司

设计内容:装饰设计/软装设计/专项设计

完工时间:2020年11月

开业时间:2021年1月

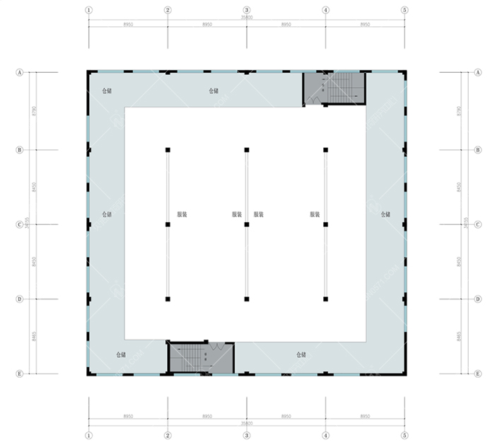
>>平面解析图


依据前期的调研结果,设计师针对羊尖农贸农贸市场的平面布局和业态划分做了更加合理的规划。


▲改造前一层平面图

▲改造后一层平面图


设计师在一层的平面改造中,立足于市场原有基础,结合消费者心理,做出了以下三点调整:

1. 控制摊位统一大小,整洁美观且利于后期施工。

2. 以不影响人流动线和交易视野为前提,规避柱网。

3. 增加对外商铺,提升市场业态品类丰富度。


▲改造前二层平面图

▲改造后二层平面图


考虑到二层土地利用率不高,在保留二层原有的业态的基础上增加办公、休息、仓储以及便民等配套设施。将特色的肉类自产自销业态放置于二楼区域,将消费者往二楼进行引流,以此带动二楼的客流量。

>>外立面优化


年久失修的羊尖农贸市场,外立面已经严重氧化,甚至墙面脱落,这对注重颜值的当代消费者失去了吸引力。

设计师在与羊尖镇当地人的交谈中发现,羊尖镇人民的审美偏好更加倾向于较为复古的中式风格,设计师在外立面设计中,充分考虑了当地人民的偏好,设计出了青砖灰墙、古色古香的外立面。


▲市场鸟瞰效果图

03.设计理念

1.市场设计


设计源于生活,源于自然。在本次设计中通过汲取大自然元素,致力打造清新自然的市场氛围与生活气息。


▲设计灵感来源


▲与国际化接轨的设计理念


依据设计理念,羊尖农贸市场以原木色为主色调,并用绿色植被进行颜色调和,一走进市场,自然淳朴的气息迎面而来。


▲以原木色为主色调的市场设计


在参考大量国外知名农贸市场的设计后,贝诺团队发现国外肉类的销售中,熟食与生肉分开售卖。


熟食区采用封闭式设计,**限度保证了食品卫生。而生肉销售区域则选择暖色光,在暖色调的加持下,肉类产品更显得色泽诱人。


▲封闭设计的熟食区域


▲肉类区域采用暖色光


水产区域的卫生条件,很大程度上反映了市场的硬装设计,贝诺团队也在这方面追求**设计,以“水产区域穿布鞋进入不湿鞋”为设计标准,加强前期给排水设施基础建设,后期设计注重水产区域的清洁便利程度,不仅颜值高,还给予经营户充分的便利。


▲给排水与清洁便捷并重的水产区域


▲**时尚感的品牌店和干货区域


在考察调研中,设计师注意到羊尖农贸市场中有大量商户属于自产自销,故在设计中也特意预留出了自产自销摊位,让市场业态更为丰富。

2.打造IP形象


无锡市是一座拥有众多风景名胜的城市,而且流传至今的锡剧也是别具一格。我司设计师也由此出发,为羊尖农贸市场设计了**特色的灯箱图案。


▲市场灯箱设计图案


设计师将无锡的历史文化、风景名胜和自然风景有机结合,进行市场灯箱包装,打造市场品牌特色文化,也增强了市场的识别度。

3.智慧农贸


在传统的农贸市场中,经营户杂乱,因长租与临时经营户并存,货品渠道来源、数量、销售额等数据都掌握在经营户的手里,市场管理方只能进行单一的物业出租、物业管理。这使得市场方在把握市场供需情况、农产品的品质安全与精细化的物业管理方面都难以实现。


▲互联网技术助力农贸


智慧农贸可以实现农贸市场的监管需求,实现信息化管理,信息的采集与发布、电子结算(智慧支付)、食品安全追溯、电子监控、电子商务、数据交换、物流配送等应用系统的服务功能。

4.便民社区


羊尖农贸市场不仅仅是单一的农产品交易,贝诺团队还将缝缝补补、洗衣、快剪、配锁等社区型的便民服务都引入市场中,将市场打造成多元化,一站式的便民服务型的乡镇中心菜场。

04. 改造举措

1. 硬装建设升级


硬装改造升级主要包括强弱电、给排水等。


做到每个摊位均设有供水,水表采用智能水表,表箱装于塑钢水表箱内,做到一户一表,方便结算。同时市场内部配置防盗设施和电视监控设施,确保市场内无死角。


▲新增的自动扶梯


市场做到WIFI无线网络、广播系统全覆盖,保障市场内的信息流通与更新。

2. 软装修饰升级


软装是关于整体环境、空间美学、陈设艺术、区域功能、材质风格、意境体验、个性偏好,甚至风水文化等多种复杂元素的创造性融合。


▲原木色与绿植相辉映


因此软装也是装修设计中不可轻视的部分,在农贸市场这样大型的公共空间内,合理的软装配饰,不仅可以提升市场的整体美感,让市场层次瞬间提升,也是打破市场单一枯燥的配色,活跃市场整体氛围必不可少的利器。

3.灯光照明升级


消费环境中,照明亮度和灯光色温可直接作用于消费者心理,影响消费行为的发生。


在羊尖农贸市场的设计中,贝诺设计师也充分利用了灯光作用,将市场打造成了区域划分明显、空间明亮舒适、突出商品商品展示的环境效果。


▲灯光的加持下更诱人的肉类产品


当然,在灯具选择时,杭州贝诺团队依旧秉持“同等效果下价格**”的价值观,充分考虑选品的性价比,在满足常规LPD值的要求下,选用更节能的照明产品。

4.陈列摆设升级


在传统的农贸市场中,经营户对于产品的陈列意识相对的薄弱,陈列是产品的门面,是留给消费者的**印象,陈列的效果直接影响店铺的销量与客流量。


▲陈列摆放有序的蔬菜


因此在本市场的设计中,对产品的陈列,首先购置统一的产品陈列框,其次规范经营户的物品摆放要求与习惯,从而达到规范、美观的陈列效果,这对市场整体的视觉感提升有很大帮助。

再来一波实景美图

↓↓↓








菜市场具有明显的经济属性,作为城乡居民"菜篮子"商品供应的主要场所,它也具有社会性和很强的公益性。


就其社会地位而言,菜市场与其他商业业态的功能相比,社会价值的取向更能体现政府形象,政府通常将其作为"民生工程"、"再就业工程"、"三农问题"等工作的平台,以此促进城市发展,展示城市形象,构建和谐社会。


羊尖农贸市场的升级改造便是羊尖政府促进城市发展——“美丽锡山”的重要举措。

· END ·



其他新闻
7月16日至19日,我司总经理薛学华受全国农贸联零售委邀请,赴温州为“全国农贸联零售委农贸市场场长沉浸式培训班”担任讲师,围绕“产品力赋能农贸市场”主题进行专题授课。此次培训汇聚了来自全国各地的农贸市场负责人及行业从业者,围绕市场现状、改造、优化提升、规划运营等话题展开深入探讨。
2025-07-22
当新的流通体系正在被重构,老市场的命运也被悄悄改写。面对一座座拔地而起的农批市场,传统农贸市场还能吃得开吗?这不仅是市场个体的生存难题,也是一场正在发生的线下生鲜格局变革。
2025-06-30
不是游乐园,也不是打卡胜地。越来越多的人,推着行李箱,穿梭在青菜和水汽之间,像是在赶一场隐秘又热烈的市集盛会。五一假期将至,无论是特种兵式旅游,还是城市漫步,越来越多的旅游清单里,菜市场成了重要的一站。云南丽江忠义市场,藏在非遗古城里,天气好的话,还能望见远处的雪山;哈尔滨的道里菜市场,各色酱料、酸菜、红肠,弥漫着北方特有的醇厚气味;淄博八大局的夜晚,烟火气蒸腾,烤肉与蒜蓉的香气交织在人声鼎...
2025-05-07
38年前,肯德基漂洋过海,在北京前门开了**家店,成为那个年代最“洋气”的存在。价格不便宜,位置不寻常,每一间店都是商业地位的象征。在当时,一个项目如果能招到肯德基,几乎可以作为成功招商的代名词。而如今,这个曾经被仰望的洋快餐品牌,已经随着时间的流逝,褪去光环,悄然“下沉”,落到了城市更日常、更生活化的角落。在杭州,上环桥、花园岗、钱潮、骆家庄、东山弄……肯德基开在了这些农贸市场的门口,成为...
2025-04-21
近年来,随着城市化进程的加快和居民消费水平的提升,各地农贸市场迎来了升级改造的浪潮。政府加大投资力度,推动市场设施现代化,致力于改善购物环境、优化食品安全监管,满足市民对优质农产品和便捷购物体验的需求。从基础设施到管理模式,许多市场都进行了升级,使得整体环境焕然一新。然而,在这一过程中,一些市场为了追求“高端化”和“创新性”,在外观设计和新型管理模式上投入了大量资源,却忽...
2025-03-24
在城市的一角,每天清晨,农贸市场准时热闹起来。商贩们吆喝着新鲜的蔬果,顾客穿梭其中讨价还价,空气中弥漫着烟火气。然而,在这看似繁荣的景象背后,农贸市场正陷入一场无声的“内卷”。价格战让商户利润微薄,同质化竞争让市场难以突围,租金和管理成本的上升更是让小商户举步维艰。而外卖生鲜、社区团购等线上平台的崛起,也在不断分流农贸市场客流。面对生存压力,农贸市场在这场激烈竞争中挣扎,转身投入升级改造的怀...
2025-03-18
在今天瞬息万变的零售市场中,农贸市场和超市的界限日益模糊。面对激烈的市场竞争和消费者需求的多样化,传统模式的束缚已经显得不再适应。也许,您曾经思考过:究竟该如何使我们的农产品零售市场焕发新生,既保留传统菜场和超市的优势,又能吸引现代消费者的目光?答案或许就在“农加超”模式中,它给我们提供了一个融合传统与现代、创新与传承的全新视角。
2025-03-18
2015年9月,位于台州市椒江区总占地面积278亩,集“蔬菜、水果、副食品、进口商品、水产 、粮油、肉类、冻品、厨具酒店用品”九大市场于一体、配备3万吨级冷库的——农港城市场开始运营,填补了台州一级农批市场空白,打造贴近百姓生活的城市农业综合体。 九年耕耘,农港城已成为与台州百姓息息相关、烟火气息浓厚的场所,全体农港人秉承“食为人天、农为正本”的企业宗旨,用坚毅、汗水稳稳托起百姓“菜篮子”。...
2024-08-12
今日(5.16日),我司总经理薛学华应绍兴市市场监督管理局邀请,在嵊州市监局进行“人才服务进市场”培训与座谈、分享经验,共商共议行业发展!座谈会上,薛学华总经理就现发展阶段下,农贸市场经营与规划设计之间的关系、未来农贸市场发展趋势的观点与见解,向绍兴市市场监管局王局长以及各位与会同仁进行了分享与交流,并就目前哥市场方可以采取的改革手段与大家共商共议,共促市场繁荣发展。培训会上,薛学华总经理分...
2024-05-16
前几日,浙江省市场监管局印发《浙江省市场监督管理局关于印发浙江省“菜篮子安全守护微改革”实施办法的通知》,就尚存的不少农贸市场食安检测负担重、各生鲜经营主体检测压力不一致等问题进行了明确规定。  其中有不少内容是为农贸市场检测工作减负,同时也对其它农贸经营主体,生鲜门店、商超、生鲜电商等,提出了责权对应的检测标准。 精选内容BENUO 1.“市场快检自上而下逐级递减/ NEWS 文:对上游生...
2024-05-09
上篇文章我们发问“农贸市场会消亡吗?” 很多读者留言发表自己的看法,一些人认为农贸市场不会消亡,因为觉得市场买菜最接地气,也有不少人认为“在线上生鲜、社区门店的包围下,农贸市场以后基本上都要倒闭”。所以,农贸市场还有机会吗?农贸市场会有多大的比例消亡?未来留存下来的农贸市场会发展成什么样子? 身处瞬息万变的当下,仿佛没什么是可以准确预知的,但历史的车轮压过每寸土地的时间不一样。  01.  ...
2024-04-30
将时间拉回10年前,在清晨或者傍晚,走进身边的农贸市场,用摩肩接踵来形容买菜的人流,一点也不夸大。但现在,很多农贸市场都在苦恼生意难做,更有甚者,一些市场的开业热闹期一过去,就面临被淘汰。 作为一座城市里最具烟火气的地方,菜市场从热闹走向了安静,这不禁引发了大家对才菜市场生存现状及未来走向的思考。 在更远的将来,菜市场该何去何从?它们会从城市里消失吗?答案见仁见智,众说纷纭,但从消费者对待买...
2024-04-23
在近几年,菜市场开始迎来全面的复兴,菜市场已经不再是纯粹的销售生鲜产品的地方,这里也将成为商业综合体,成为一个社交空间,或是热门旅游打卡地,复古、现代、时尚,各种风格的菜市场也层出不群。 我们不禁发问菜场改造后,如何让菜场“可持续焕新”? 很多装饰设计停留在皮肤,而不是经脉,造血功能不够,和农产、和生活方式结合的很松散,更重要的是买菜的人和去打卡的人不是同一个群人,好像市场在社交网络,在年轻...
2024-04-01
当今社会,追求幸福感已经成为一种普遍的心理需求。在城市生活中,人们的幸福感又该用什么去衡量和提升呢? 虽然这个问题的答案千人千面,甚至你可能会说“烟火气和幸福感都是瞬间的感觉,抓不住”,但接下几个案例,确确实实告诉你,一个城市中升腾的烟火气是幸福感的主要生产力。
2024-03-13
春生夏长,秋收冬藏,一年倏忽行至尾声。我们再一次站在岁末终点,这一年,我们用几个案例,来定义这一场辞旧迎新。
2024-02-28
1月25日,杭州拱墅区花园岗农贸市场盛大试营业!市场内人来人往,红色的装饰,喜庆的背景音乐,热闹的氛围,让人提前迈入新春的祥和里。
2024-02-20
过去的两个月里,杭州贝诺市场研究中心设计团队前往中国香港和韩国首尔、釜山等地进行了考察学习与交流,拓展全球视野,探析设计潮流,为今后菜市场的设计汲取更多、更广阔的思路。
2024-01-29
今年,有关预制菜的话题受到广泛关注的同时,也引发诸多争议。 预制菜是“风口”还是“猛兽”?
2023-12-15
近几年,很多人发现生鲜生意很火,都加入进来了,入局后发现如何实现盈利是一大难题。
2023-12-15
上一页 1 2 3 下一页

项目洽谈:187  5711  7786( 薛先生 )

项目洽谈:177  8859  9975( 王小姐 )  

联系邮箱:hzbno571@163.com